【小二跟單0012】弘陽上城,安裝完畢
小二跟單0012】弘揚上城,設計中...
小程序二維碼鎮樓!
下拉查看更多進度~
歡迎大家來圍觀~

更多小區進度請關注小二家的跟單小程序
聯系方式:18018261102(同微信)
QQ:291651193
微信掃碼

設計中,先發帖,待更新……
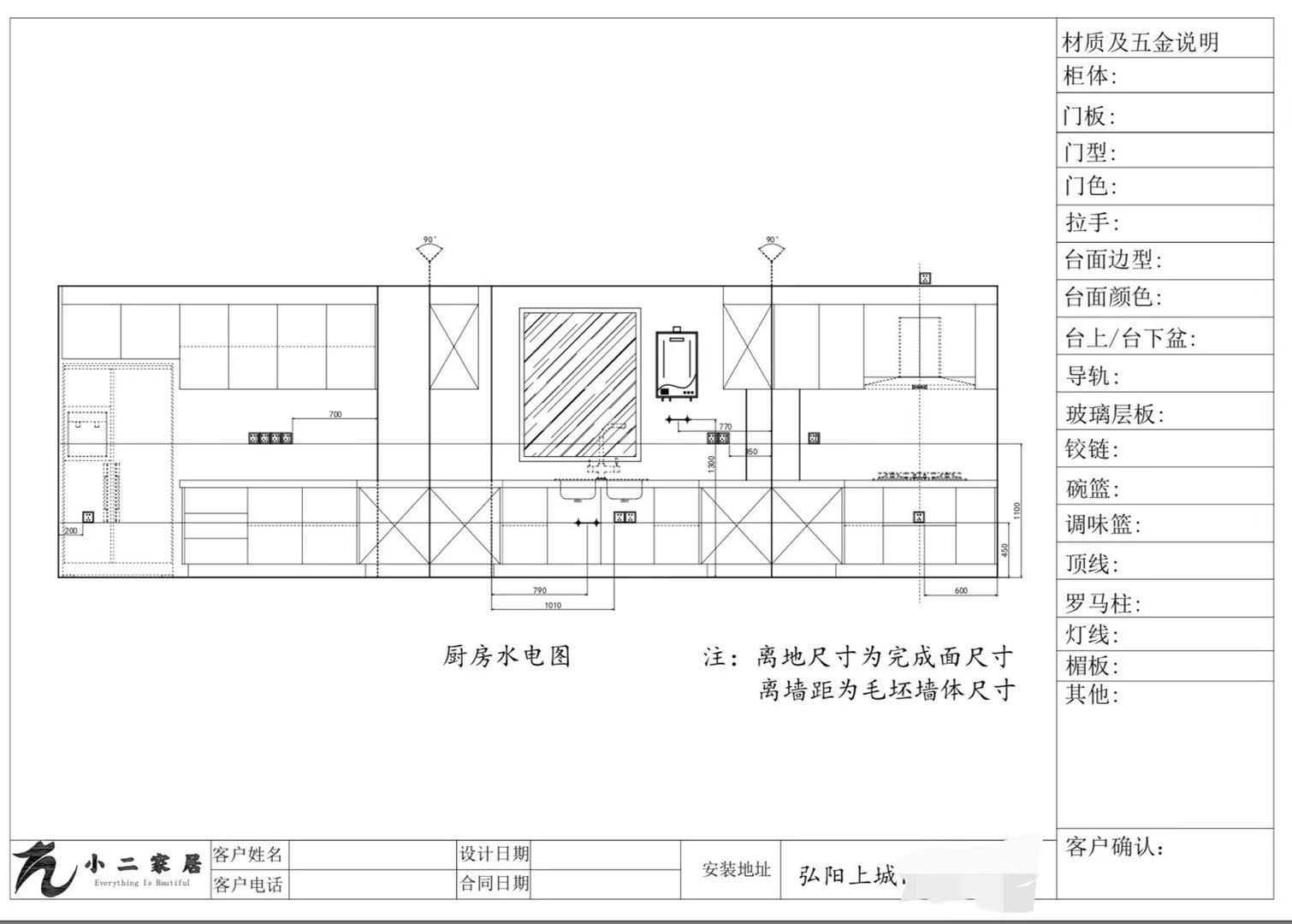
先發一張水電圖鎮樓

上門量房啦,根據業主家的要求,仔細精量每處尺寸,確保設計圖紙的精準






開始制作啦,專業設備雕刻,板材使用平安樹實木多層清水橡木制作,有高級的藍光防偽標識









柜體封邊中,采用法國波士熱熔顆粒膠,設備溫度達到200°C封出來的邊牢固,沒有爆邊~封邊條上有小二家居的Logo哦






和業主約好今天送貨的,今天的天氣不給力,下著毛毛細雨,裝這滿滿一車貨,吃完午飯就出發。






柜體基本安裝完畢了,師傅的動作還是蠻快的,在安裝一天整體效果就出來了,敬請期待吧








經過三天的努力,安裝完畢,先發一些細節,和居拉手,海蒂詩導軌,不銹鋼拉籃,諾米鉸鏈,ABS尼龍柜腳,師傅拍照技術越來越好了,整體效果挺漂亮的,原木色的柜子給人感覺溫馨,清爽,簡簡單單,業主大大的眼光真不錯,今天先更新到這里,打卡下班。
















